Развернуть карту

Дом у леса, 19000000 руб.

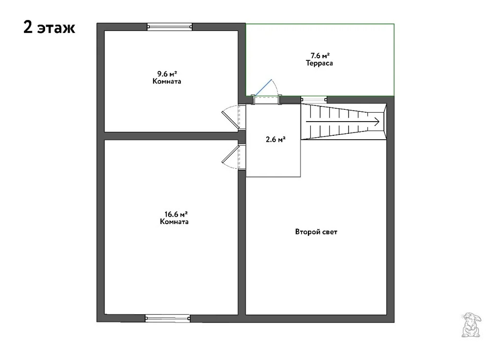
  • Комнат5
  • Площадь земельного участка, соток25.00
  • Общая площадь, м²200.0

УНИКАЛЬНОЕ ПРЕДЛОЖЕНИЕ: ДОМ РЯДОМ С ЛЕСОМ!

Для истинных ценителей уединения, свежего воздуха и живописных пейзажей мы рады представить вам этот потрясающий новый дом, расположенный на просторном участке в 25 соток! Отсутствие соседей с трех сторон создает атмосферу настоящего уединения и покоя.

Этот современный дом площадью 200 кв. м. , построенный в 2023 году с использованием самых передовых технологий и высококачественных материалов, станет идеальным местом для жизни!

Характеристики дома:
• Мощность 20 кВт, 3 фазы
• Скважина глубиной 27 метров на песок
• Септик Топас

Строение выполнено по каркасной технологии с утеплением стен, кровли и пола в 200 мм. Теплый инфракрасный пол в каждой комнате и экономная система отопления с дистанционным управлением обеспечат вам комфорт в любое время года. Мощная система кондиционирования и онлайн-видеонаблюдение добавляют удобства и безопасности.

В доме также предусмотрена уютная парная с дровяной печью ТехноЛит, которая подарит вам идеальный мелкодисперсный пар. Полноценная система фильтрации воды и стильные ставни на окнах первого этажа добавляют очарования и защищают от солнечных лучей в жаркие дни.

Установлена дорогая и современная кухня с эмалевым покрытием, которая не только привлекает внимание своим стильным дизайном, но и обеспечивает долговечность и легкость в уходе. Это идеальное место для кулинарных экспериментов и семейных ужинов!

Просторные, светлые комнаты с новой качественной мебелью оформлены в современном стиле и готовы к комфортному проживанию круглый год. Участок засеян белым клевером, создающим мягкий зеленый ковер, а обустроенная парковка на 2 машины встречает вас при въезде. Для маленьких жителей предусмотрена детская площадка с качелями и горкой, а в тени хвойных деревьев уютно расположился дровяной банный чан.

Это прекрасное место идеально подходит для спокойного отдыха или активной жизни, а также для реализации вашего творческого потенциала — участок предлагает безграничные возможности для воплощения ваших идей!

В непосредственной близости находятся сетевые магазины: 5ка, Магнит, Чижик и многие другие. Дорога до города займет всего 20 минут по скоростным Горьковскому и Щелковскому шоссе.

Не упустите возможность стать владельцем этого замечательного дома! Звоните прямо сейчас!
Вам не ответили? Просим отнестись с пониманием сотрудник сейчас занят, он тоже человек; Позвоните, пожалуйста, еще раз или напишите Ваш номер в чат (так мы увидим нужный адрес).



19000000 руб. | 287843 $ | 252251 €

Михайлова Ирина

+7 (926) 511-04-04

Изменено: 01 Dec 2025, 22:20:01